Page suivante
Page précédente
Paris (75003)

Appartement 4 pièce(s) 2 chambre(s) 105 m²

1
1
Balcon
Réf 01074
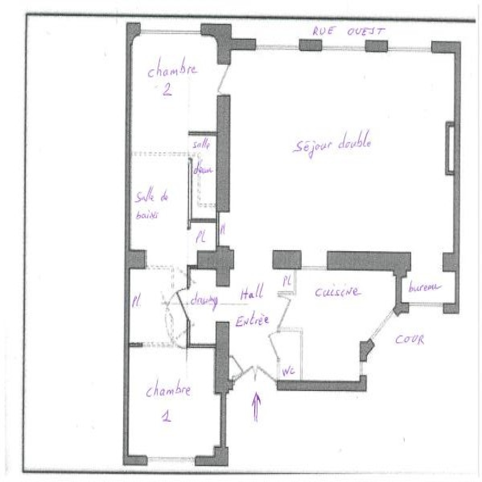
En plein MARAIS : Dans le somptueux immeuble en Pierre de Taille ravalé "Au Bel Arlequin" 76 rue du Temple Paris 3ème, limite 4ème, au 3ème étage AVEC ascenseur, double exposition rue et belle cour ravalée, sublime appartement de réception de 105,16m² Loi Carrez, comprenant :~Hall d'entrée avec double porte d'entrée blindée, vaste séjour double de 50m², avec 3 immenses portes-fenêtres double vitrage à l'Ouest, ensoleillé, vue agréable, beau parquet massif et 3,20m de hauteur sous plafond avec moulures (possibilité de remettre cheminées) et petite alcove pour bureau avec fenêtre. Cuisine toute équipée haut de gamme (possibilité d'ouvrir passe plat sur séjour), 2 grandes chambres "Open Space" avec cloisons amovibles pour bien les isoler, nombreux placards équipés très rationnels et dressing, belle salle de bains spacieuse et salle d'eau entre les 2 chambres. WC séparé. Appartement d'architecte contemporain. Radiateurs électriques haut de gamme. le tout en parfait état. Immeuble très bien entretenu. 1 cave. A voir rapidement. Copropriété : 88 lots dont 58 lots principaux. Quote-part budget prévisionnel annuel : 2523E. Prix affiché honoraires inclus à 3% TTC.

Bilan énergétique

Diagnostics énergetiques
Consommation énergétique
A B C D E F G
Emission de gaz à effet de serre
A B C D E F G
DPE ANCIENNE VERSION
A propos de ce bien Caractéristiques de ce bien
  • Surface 105 m²
  • carrez 105 m²
  • 2 chambre(s)
  • 1 salle(s) de bain
  • 1 salle(s) d'eau
  • construit en 1920
  • Chauffage individuel : radiateur (electrique)
  • 3ème étage
  • ascenseur
  • cave
  • balcon
  • interphone
  • quartier Rambuteau

Financier

Informations financières
Les honoraires d'agence seront intégralement à la charge du vendeur  
Charges 210 €
Taxe foncière annuelle 1 219 €

Simulation

Calcul des mensualités
* Champs obligatoires
Arc En Ciel Immo Agence