Page suivante
Page précédente
Paris (75010)

Appartement 6 pièce(s) 4 chambre(s) 103 m²

2
Balcon
Réf 01263

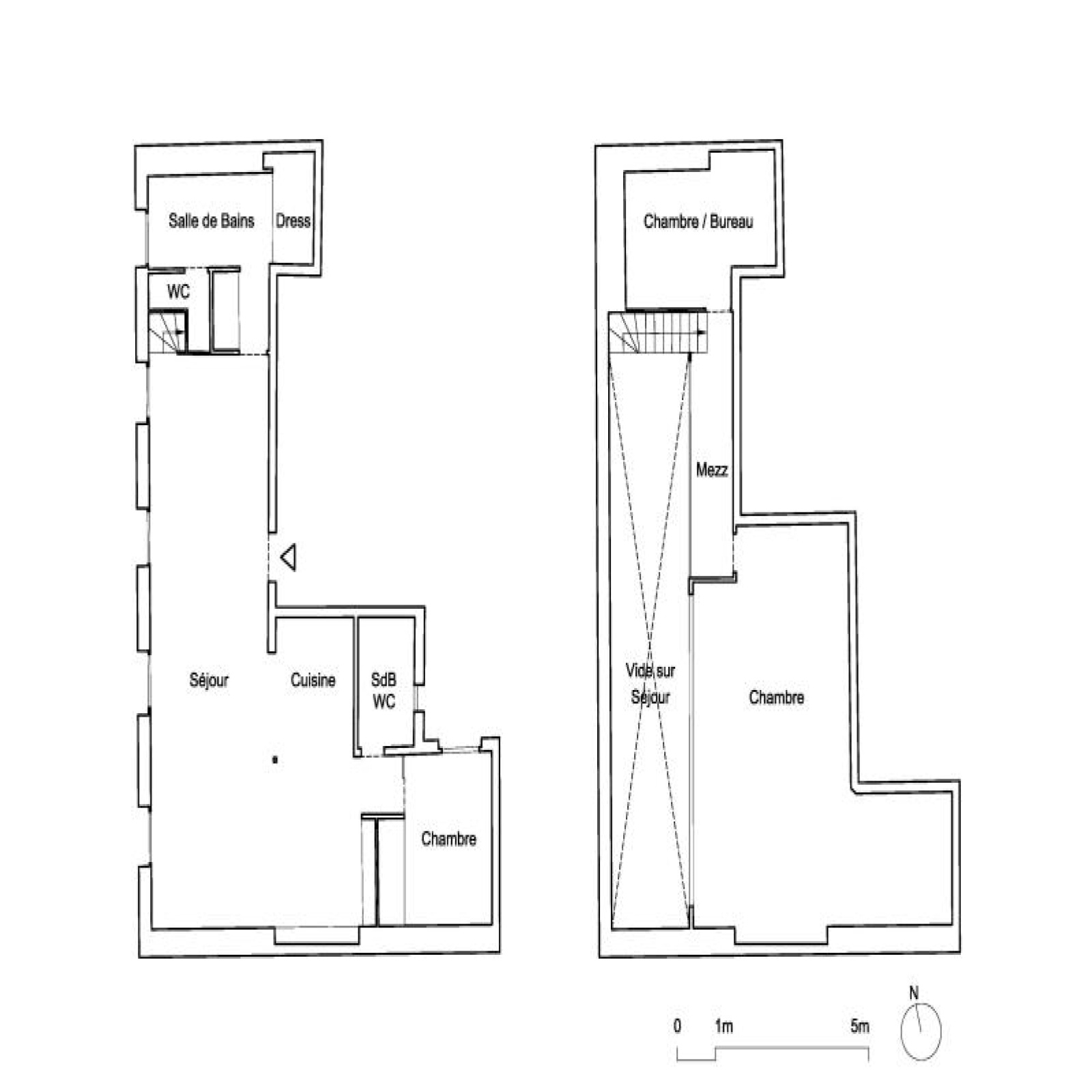
Paris 10ème : DUPLEX "esprit LOFT" avec 3 ou 4 chambres : comme une maison avec vue sur les toits de Paris. 126,53m² au sol, dont 91,39m² Carrez soit 103,10m² pondérés. Beaux VOLUMES. Entièrement réaménagé par architecte (le propriétaire), ce bien d'exception propose au 5ème et dernier étage SANS ascenseur : un vaste séjour CATHEDRALE avec jusqu'à 4,30m de hauteur et 48,20m² bordé par 4 fenêtres double vitrage et oscillo-battantes à l'Ouest, cuisine équipé à l'américaine, le niveau bas du duplex accueille également une belle chambre, 2 salles de bains avec 2 wc et fenêtres, un dressing et de nombreux rangements.~A l'étage sous les toits, un bureau/petite chambre, une galerie en mezzanine et une grande chambre (éventuellement divisible)...~Lumière à toute heure par sa triple exposition avec 7 fenêtres et 8 velux ; CALME absolu, entièrement sur cour. Parfait état, PLAN MODULABLE (agrandir séjour, 3ème sde, etc.). FIBRE. L'ensemble est constitué avec des matériaux nobles : parquets massifs, marbre de Carrare pour la cuisine et sdb. Chauffage individuel au gaz à condensation. Très bonne isolation thermique et phonique, porte blindée 7 points Torjman, stores à projection Roussel, gardien vidéo-surveillance.~Cellier d'étage et 2 caves attenantes.~Quartier des 2 gares (Nord et Est), St Vincent de Paul, Faubourg St Denis. Marché St Quentin.

Copropriété : 79 lots dont 66 lots principaux. Quote-part budget prévisionnel annuel : 4.320€. DPE ancienne version : Classe d'énergie C (105kWh/m².an) ; GES D (24kg CO2/m².an) ; 800€ estim. prix moyens des énergies indexés au 15/08/2015 abonnements inclus. Prix affiché honoraires inclus à 2,94% TTC.


Les informations sur les risques auxquels ce bien est exposé sont disponibles sur le site Géorisques

Bilan énergétique

Diagnostics énergetiques
Consommation énergétique
A B C D E F G
Emission de gaz à effet de serre
A B C D E F G
DPE ANCIENNE VERSION
A propos de ce bien Caractéristiques de ce bien
  • Surface 103 m²
  • carrez 91 m²
  • 4 chambre(s)
  • 2 salle(s) de bain
  • construit en 1900
  • cuisine américaine
  • Chauffage individuel : radiateur (gaz)
  • 5ème étage
  • cave
  • balcon
  • quartier Gare du Nord

Info copro

Copropriété
  • Copropriété Oui
  • Nombre de lots 79
  • Quote part annuelle des charges 4 320 €
  • Plan de sauvegarde Non
  • Statut du syndic Pas de procédure en cours

Financier

Informations financières
Prix net vendeur 970 000 €
Charges 360 €
Taxe foncière annuelle 984 €

Simulation

Calcul des mensualités
* Champs obligatoires
Arc En Ciel Immo Agence