Page suivante
Page précédente
Paris (75011)

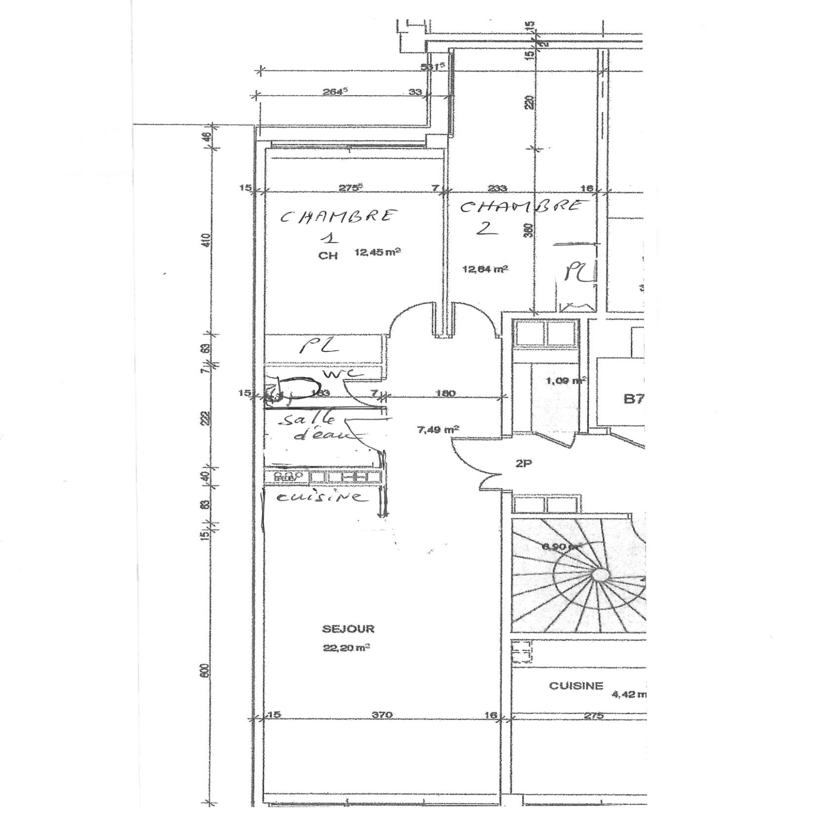
Appartement 3 pièce(s) 2 chambre(s) 60.01 m²

1
Ascenseur
1
Réf 2044

Entre les métros Philippe Auguste et Alexandre Dumas, belle résidence de standing de 1970 avec 2 entrées Boulevard de Charonne et Avenue Philippe Auguste, proche écoles, marché et commerces, Grand PARC privé dans la résidence avec jeux pour enfants, au 1er étage avec ascenseur, un Appartement RATIONNEL traversant de 60,01m² Carrez, comprenant : Entrée avec porte blindée et placard, séjour de 25m² sur rue dégagée sans vis à vis direct et face aux arbres exposé Nord-Est, avec coin cuisine meublée, 2 belles chambres de plus de 12m² chacune avec placard en pan mural, sur jardin calme Sud-Est, belle salle d'eau style contemporain, wc indépendant. double vitrage, volets roulants, chauffage collectif par radiateurs, triple exposition Sud Ouest - Nord Est et Sud. 1 cave complète ce bien. Place de parking ou box fermé en option.

Copropriété : 813 lots dont 278 lots principaux en plusieurs bâtiments autour du jardin intérieur. Quote-part budget prévisionnel annuel 4153€ ; DPE NOUVEAU Classe d'énergie D (191kWh/m²an d'énergie primaire et 181kWh/m²an d'énergie finale) ; GES D (39kgCO2/m2an) ; 610 - 890€ estim. prix moyens des énergies indexés au 01/01/2021, abonnements inclus, chauffage et eau compris. “Les informations sur les risques auxquels ce bien est exposé sont disponibles sur le site Géorisques : www.georisques.gouv.fr”.

Prix affiché honoraires inclus à 2.83% TTC.

Le chauffage est inclus dans les charges.


Les informations sur les risques auxquels ce bien est exposé sont disponibles sur le site Géorisques

Bilan énergétique

Diagnostics énergetiques
Consommation énergétique
A B C D E F G
Emission de gaz à effet de serre
A B C D E F G

Montant estimé des dépenses annuelles d'énergie de ce logement pour un usage standard est compris entre 610 € et 890 € . 2021 étant l'année de référence des prix de l'énergie utilisés pour établir cette estimation.

A propos de ce bien Caractéristiques de ce bien
  • Surface 60,01 m²
  • carrez 60,01 m²
  • séjour 25 m²
  • 2 chambre(s)
  • 1 salle(s) d'eau
  • construit en 1970
  • cuisine américaine (équipée)
  • Chauffage collectif : radiateur (gaz)
  • 1 garage(s)
  • exposition Nord-Est
  • 1 niveau(x)
  • 1er étage
  • 7 étage(s)
  • ascenseur
  • vue Rue et Jardin
  • cave
  • interphone
  • quartier Alexandre Dumas/ Avron
  • accès handicapé

Composition

Composition de ce bien

Etage 1

  • salon/sejour 24.11 m²
  • chambre 12.05 m²
  • chambre 12.75 m²
  • salle de bain 2.5 m²
  • WC 1.35 m²
  • entrée 7.25 m²

Info copro

Copropriété
  • Copropriété Oui
  • Lot n° 1110
  • Nombre de lots 813
  • Quote part annuelle des charges 4 153 €
  • Plan de sauvegarde Non
  • Statut du syndic Pas de procédure en cours

Financier

Informations financières
Prix net vendeur 530 000 €
Charges 345 €
Taxe foncière annuelle 1 452 €

Simulation

Calcul des mensualités
* Champs obligatoires
Arc En Ciel Immo Agence