Page suivante
Page précédente
Paris (75004)

Appartement 2 pièce(s) 1 chambre(s) 43 m²

1
Réf 2068

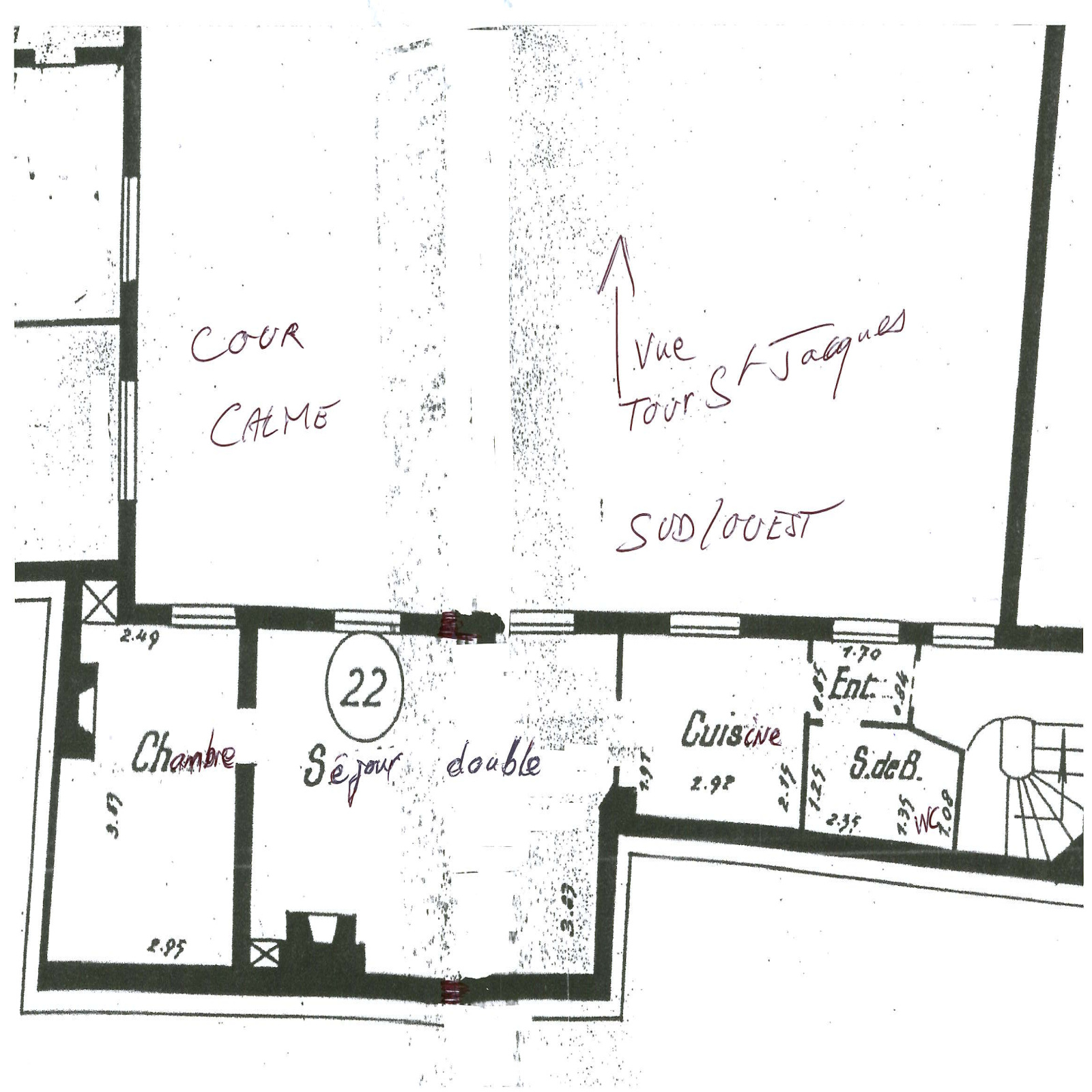
Au COEUR DE PARIS (tout en étant très au CALME) avec VUE SUR LA TOUR ST JACQUES et sur cour dégagée, exposé tout Sud-Ouest très ENSOLEILLE, Métro Châtelet Les Halles - coté MARAIS - Paris 4è Bd Sébastopol - Rue Nicolas Flamel, au 4ème étage sans ascenseur d'un bon immeuble ancien, ce très beau 2 pièces de 42,23m² Carrez comprend : Entrée avec fenêtre, cuisine équipée rationnelle avec fenêtre, séjour double (anciennement séjour et 2ème chambre) avec 2 fenêtres et cheminée, Chambre avec coin qui peut faire placard ou bureau et cheminée. Sous les combles (à voir pour récupérer les combles pour donner du volume à l'appartement et isoler pour améliorer le DPE, mais aucune démarche n'a été entamée avec la copropriété, mais le vendeur reste copropriétaire dans le même immeuble). Radiateur électrique à inertie "neuf" et double vitrage. Aucun voisin mitoyen (sauf en dessous). Un cagibi en jouissance au 3ème étage et 1 belle cave. Espace pour vélo dans la copropriété.

Bonne Copropriété : 43 lots dont 20 lots principaux. Quote-part budget prévisionnel annuel : 1.386€ ; DPE NOUVEAU Classe d'énergie G (638 kWh/m²an d'énergie primaire et 277 kWh/m²an d'énergie finale) ; GES C (21 kgCO2/m²an) ; 1640 € à 2250 € estim. prix moyens des énergies indexés au 01/01/2021, abonnements inclus. “Les informations sur les risques auxquels ce bien est exposé sont disponibles sur le site Géorisques : www.georisques.gouv.fr”.

Honoraire inclus de 3,96%


Les informations sur les risques auxquels ce bien est exposé sont disponibles sur le site Géorisques

Bilan énergétique

Diagnostics énergetiques
Consommation énergétique
A B C D E F G
Emission de gaz à effet de serre
A B C D E F G

Logement à consommation énergétique excessive : classe G

Montant estimé des dépenses annuelles d'énergie de ce logement pour un usage standard est compris entre 1 640 € et 2 250 € . 2021 étant l'année de référence des prix de l'énergie utilisés pour établir cette estimation.

A propos de ce bien Caractéristiques de ce bien
  • Surface 43 m²
  • carrez 42,23 m²
  • 1 chambre(s)
  • 1 salle(s) d'eau
  • construit en 1850
  • cuisine séparée (équipée)
  • Chauffage individuel : radiateur (electrique)
  • exposition Sud-Ouest
  • 1 niveau(x)
  • 4ème étage
  • 4 étage(s)
  • vue Tour St Jacques et toits de Paris
  • cave
  • quartier Châtelet Cœur de Paris, Châtelet Paris 4, Marais

Composition

Composition de ce bien

Etage 4

  • chambre
  • cuisine
  • salon/sejour
  • chambre

Info copro

Copropriété
  • Copropriété Oui
  • Lot n° 22
  • Quote part annuelle des charges 1 386 €
  • Plan de sauvegarde Non
  • Statut du syndic Pas de procédure en cours

Financier

Informations financières
Prix net vendeur 432 000 €
Charges 115,50 €
Taxe foncière annuelle 593 €

Simulation

Calcul des mensualités
* Champs obligatoires
Arc En Ciel Immo Agence