Page suivante
Page précédente
Paris (75018)

Appartement 2 pièce(s) 1 chambre(s) 54.35 m²

1
Balcon
Ascenseur
Réf 2165

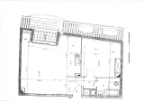
Résidence de standing "Le Montmartre" dans bel immeuble PdT de 1994, proche du Marché St Pierre, entre métros Anvers (ligne 2) et Barbès (lignes 2 et 4), au CALME, au 6ème et dernier étage avec ascenseur, dans résidence avec gardien 24h/24, ce grand 2 pièces de 54.35m² au sol dont 45.85m2 Carrez, + 4m² de TERRASSE, plan en étoile avec entrée desservant toutes les pièces, comprenant : une entrée avec porte blindée et placards, séjour de 25m² sur terrasse de 4m² au Nord-Ouest et superbe vue sur le Sacré-Coeur, cuisine de 8m² américaine fonctionnelle pouvant être fermée avec fenêtre, 1 chambre spacieuse de 15m² avec placard et 2 velux avec volets électriques, belle salle de bains avec place pour machine à laver le linge, wc. Bon état. 1 cave. Local vélo. Possibilité de vente (25.000 €) ou location (120€) d'une place de parking.

Copropriété : 108 lots dont 34 lots principaux. Quote-part budget prévisionnel annuel : 2040€ ; DPE NOUVEAU Classe d'énergie D (196kWh/m²an d'énergie primaire et 85kWh/m²an d'énergie finale) ; GES B (6 kgCO2/m2an) ; 740€ à 1050€ estim. prix moyens des énergies indexés sur les années 2021, 2022 et 2023, abonnements inclus. “Les informations sur les risques auxquels ce bien est exposé sont disponibles sur le site Géorisques : www.georisques.gouv.fr”.Prix affiché honoraires inclus à 3.96% TTC.


Les informations sur les risques auxquels ce bien est exposé sont disponibles sur le site Géorisques

Bilan énergétique

Diagnostics énergetiques
Consommation énergétique
A B C D E F G
Emission de gaz à effet de serre
A B C D E F G

Montant estimé des dépenses annuelles d'énergie pour un usage standard est compris entre 740 € et 1 050 € . Prix moyens des énergies indexés sur les années 2021, 2022 et 2023 (abonnements compris).

A propos de ce bien Caractéristiques de ce bien
  • Surface 54,35 m²
  • carrez 45,85 m²
  • séjour 25 m²
  • 1 chambre(s)
  • 1 salle(s) de bain
  • construit en 1994
  • cuisine américaine (semi-équipée)
  • Chauffage individuel : radiateur (electrique)
  • exposition Nord-Ouest
  • 1 niveau(x)
  • 6ème étage
  • 6 étage(s)
  • ascenseur
  • vue Sacré-Coeur
  • cave
  • balcon
  • terrasse
  • visiophone
  • interphone
  • quartier Anvers, Anvers-Barbès, Barbès - Marché St Pierre, Buttes Montmartre, Entre Barbès et Anvers
  • accès handicapé

Composition

Composition de ce bien

Etage 6

  • salon/sejour 24.62 m²
  • cuisine 7.85 m²
  • accueil 2.33 m²
  • chambre 15.32 m²
  • salle de bain 4.23 m²

Info copro

Copropriété
  • Copropriété Oui
  • Lot n° 2133
  • Nombre de lots 108
  • Quote part annuelle des charges 2 040 €
  • Plan de sauvegarde Non
  • Statut du syndic Pas de procédure en cours

Financier

Informations financières
Prix net vendeur 480 000 €
Charges 170 €
Taxe foncière annuelle 1 214 €

Simulation

Calcul des mensualités
* Champs obligatoires
Arc En Ciel Immo Agence