Page suivante
Page précédente
Paris (75018)

Appartement 2 pièce(s) 1 chambre(s) 55 m²

1
Balcon
Ascenseur
Réf 1848

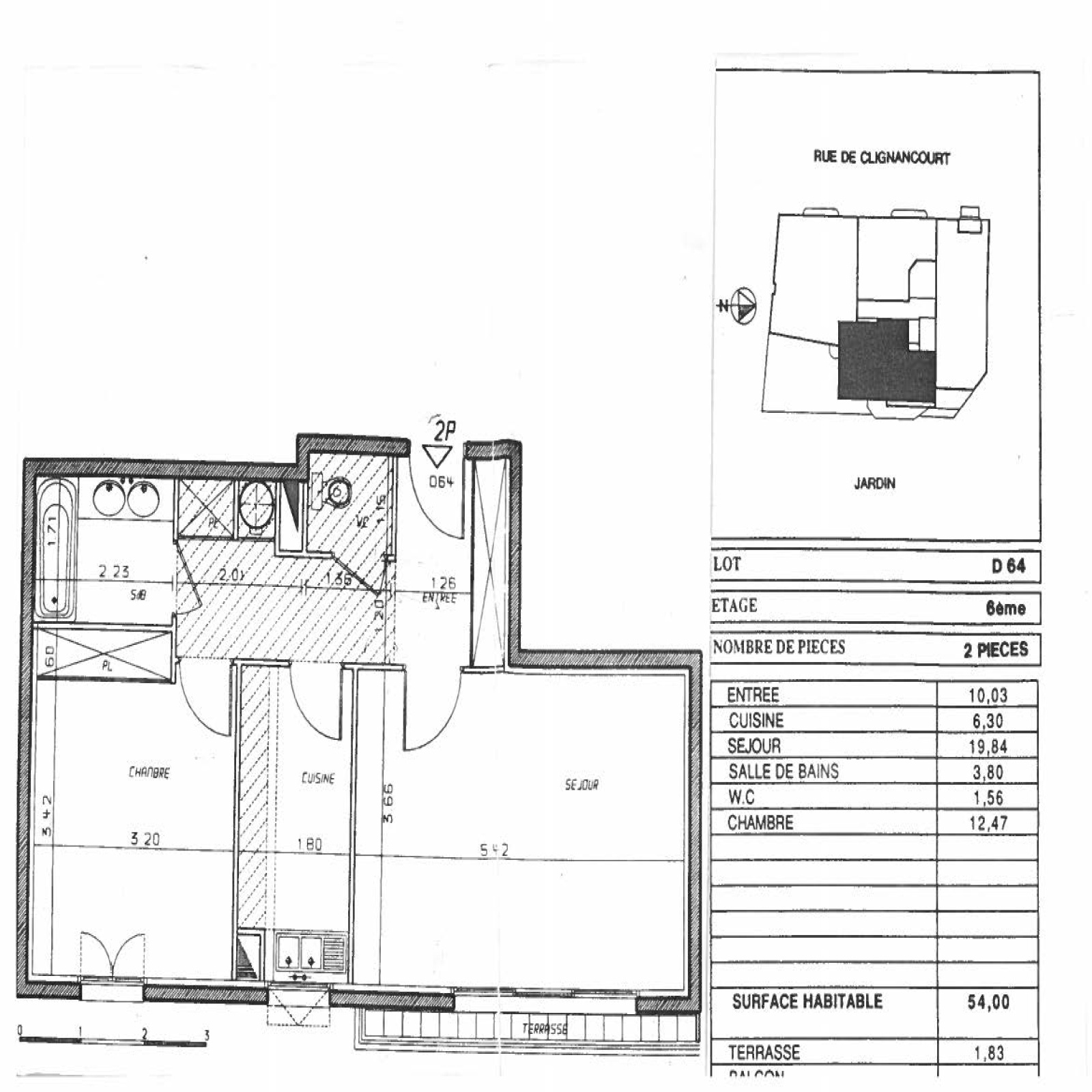
Résidence "Le Montmartre" de standing 1994, proche Marché St Pierre, entre les métros Anvers (ligne 2) et Barbès-Rochechouart (Lignes 2 et 4), sur Jardin à l'EST au CALME, 6ème étage (sur 7) AVEC ascenseur, gardien 24/24. GRAND 2 pièces de 55m² pondérés (balcon 1/2) soit 53,97m² Carrez + BALCON 2m², RATIONNEL plan en étoile desservant toutes les pièces. Appartement comprenant : une entrée avec porte blindée Fichet et grands placards, un beau séjour de 20m² avec parquet et balcon ensoleillé donnant sur le jardin de la résidence privée, cuisine toute équipée et fonctionnelle pouvant être ouverte sur séjour et avec fenêtre oscillobattante, une chambre de 12,50m² sur jardin et avec grand placard, une belle salle de bains avec double vasque, un grand wc indépendant. Nombreux rangements. Parfait état. 1 cave de 4m². Possibilité de louer ou acheter parking dans la résidence. Visite virtuelle 360° en dernière photo.

Copropriété : 52 lots dont 26 lots principaux. Quote-part prévisionnel annuel : 2100€ gardien compris ; DPE nouvelle version : Classe d'énergie D (191kWh/m².an) ; GES A (5kg CO2/m².an) ; 670 à 950€ estim./an. prix moyens des énergies indexés au 01/01/2021, abonnements inclus. Prix affiché honoraires inclus à 4% TTC.


Les informations sur les risques auxquels ce bien est exposé sont disponibles sur le site Géorisques

Bilan énergétique

Diagnostics énergetiques
Consommation énergétique
A B C D E F G
Emission de gaz à effet de serre
A B C D E F G

Montant estimé des dépenses annuelles d'énergie de ce logement pour un usage standard est compris entre 670 € et 950 € . 2021 étant l'année de référence des prix de l'énergie utilisés pour établir cette estimation.

A propos de ce bien Caractéristiques de ce bien
  • Surface 55 m²
  • carrez 53,97 m²
  • séjour 20 m²
  • 1 chambre(s)
  • 1 salle(s) de bain
  • construit en 1994
  • cuisine séparée (équipée)
  • Chauffage individuel : convecteur (electrique)
  • exposition Est
  • 1 niveau(x)
  • 6ème étage
  • 7 étage(s)
  • ascenseur
  • vue jardin
  • cave
  • balcon
  • interphone
  • quartier Anvers, Anvers-Barbès, Barbès - Marché St Pierre, Barbès-Rochechouart, Butte Montmartre, Entre Barbès et Anvers
  • accès handicapé

Composition

Composition de ce bien

Etage 6

  • chambre 12.47 m²
  • cuisine 6.30 m²
  • salon/sejour 19.84 m²
  • salle de bain 3.80 m²

Info copro

Copropriété
  • Copropriété Oui
  • Lot n° 1324
  • Nombre de lots 52
  • Quote part annuelle des charges 2 100 €
  • Plan de sauvegarde Non
  • Statut du syndic Pas de procédure en cours

Financier

Informations financières
Prix net vendeur 500 000 €
Charges 175 €
Taxe foncière annuelle 817 €

Simulation

Calcul des mensualités
* Champs obligatoires
Arc En Ciel Immo Agence