Page suivante
Page précédente
Paris (75005)

Loft 2 pièce(s) 1 chambre(s) 55 m²

1
Réf 1889

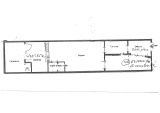
Paris 5, au coeur de Paris, quartier du Panthéon et Jardin du Luxembourg, rue des Fossés Saint Jacques, LOFT très ATYPIQUE de 55m² au sol dont 52.52m² Carrez + une COURETTE de 12m² en jouissance privative AU GRAND CALME. Modulable dans sa conception mais composé actuellement : d'une grande entrée (petite pièce) avec baie vitrée et possibilité de faire une véranda sur la courette (droit de la copropriété et achat du sol, mais non construite budget 12.000 € TTC), cuisine aménagée en pan mural, séjour avec baie vitrée donnant sur la courette, espace bureau sous verrière avec rangement entre séjour et chambre, desservant une salle d'eau avec wc, et une chambre avec placard en second jour. Ravalement de la courette vient d'être fini. Prévoir en plus un budget de 25.000 € pour changement de destination (accord voté en AG), à faire démarches administratives auprès de la Mairie. Idéal pour musiciens, professions libérales, pied à terre, pour étudiants, 1er achat... Très bonne rentabilité rapport qualité/prix/emplacement très recherché.

Copropriété : 32 lots dont 15 lots principaux. Quote-part budget prévisionnel annuel : 627 Euros. DPE ancienne version D (216kWh/m²an) / GES B (7CO2/m²an). Prix affiché honoraires inclus 3.96% TTC.

Bilan énergétique

Diagnostics énergetiques
Consommation énergétique
A B C D E F G
Emission de gaz à effet de serre
A B C D E F G
DPE ANCIENNE VERSION
A propos de ce bien Caractéristiques de ce bien
  • Surface 55 m²
  • carrez 52,52 m²
  • 1 chambre(s)
  • 1 salle(s) d'eau
  • construit en 1800
  • Chauffage individuel : radiateur (electrique)
  • 1 niveau(x)
  • 4 étage(s)
  • terrasse
  • interphone

Info copro

Copropriété
  • Copropriété Oui
  • Lot n° 103
  • Quote part annuelle des charges 627 €
  • Plan de sauvegarde Non
  • Statut du syndic Pas de procédure en cours

Financier

Informations financières
Prix net vendeur 480 000 €
Charges 53 €

Simulation

Calcul des mensualités
* Champs obligatoires
Arc En Ciel Immo Agence