Page suivante
Page précédente
Levallois-Perret (92300)

Appartement 2 pièce(s) 1 chambre(s) 52.3 m²

1
Balcon
Ascenseur
Réf 2052

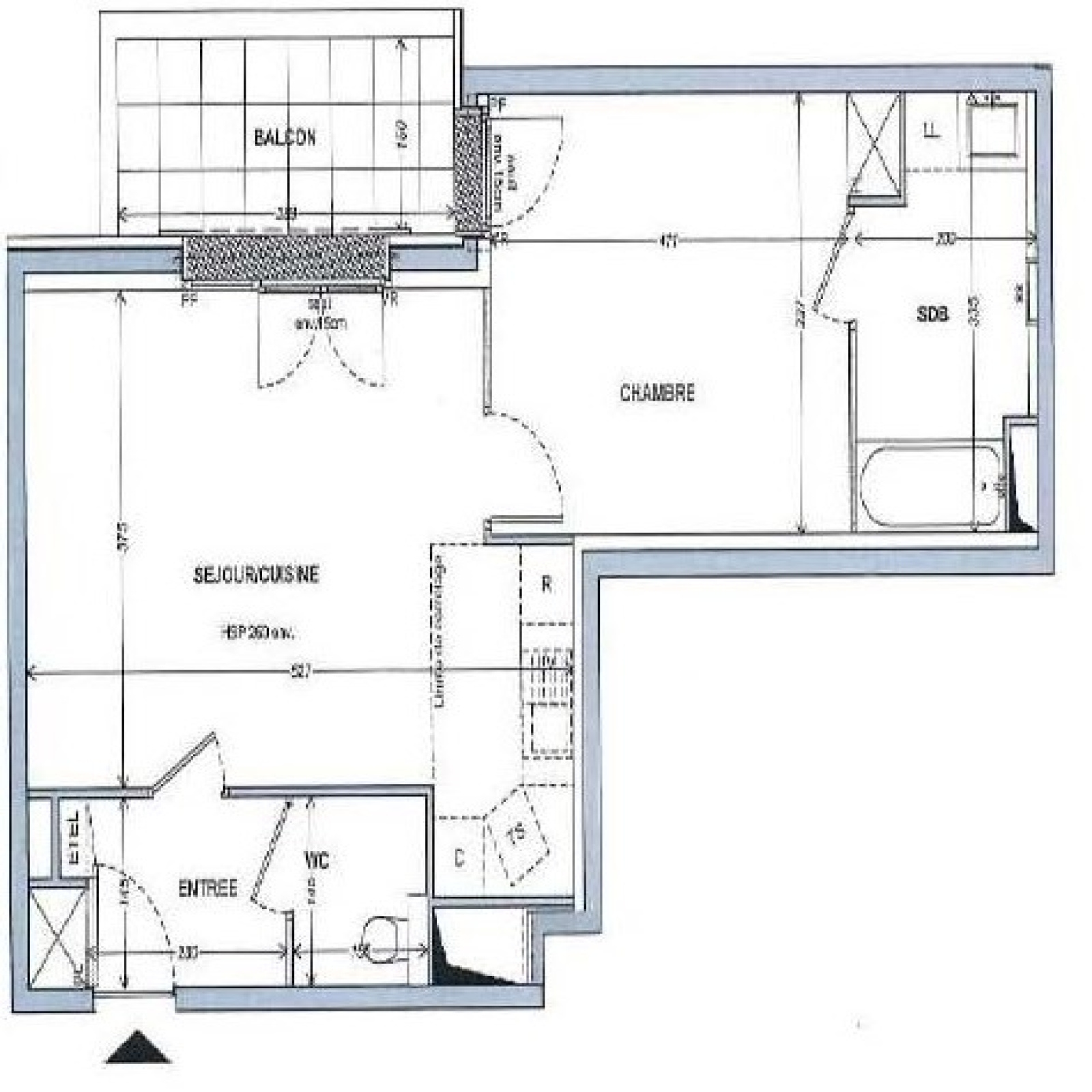
Métro Pont de Levallois-Becon, à proximité du Parc de la Planchette, à l'angle rue Baudin et rue du Parc, dans une Résidence "14 Parc" très grand standing 2022 SUPERBE et COSSUE, spacieux 2 pièces de 52.30m² pondérés soit 49.41m² Carrez + balcon/terrasse de 5.79m² (pondération à 1/2) vue sur espaces arborés privatifs, au 2è étage avec ascenseur, Il est composé d'une entrée spacieuse avec placard et grand wc séparé (espace mobilier possible), séjour de 23m² avec parquet massif sur baie vitrée accès balcon largue, permettant mobilier terrasse, grande chambre de 14.24m² avec porte-fenêtre exposé Nord-Ouest desservant belle salle de bains avec branchement lave-linge.Volets roulants électriques. Chauffage collectif urbain. Mobilier disponible à la vente en option + place de PARKING interieure en sous-sol en option.

Copropriété : 376 lots dont 136 lots principaux. Quote-part budget prévisionnel annuel : 1.560 E. Nouveau DPE Classe d'énergie C (81kWh/m²an d'énergie primaire et 60kWh/m²an en énergie finale) / GES (13kgCO²/m²an) / 260-410E estimation prix moyens des énergies indexés au 01/01/2021, abonnements inclus. "Les informations sur les risques auxquels ce bien est exposé sont disponibles sur le site Georisques : www.georisques.gouv.fr". Honoraires charge vendeur.

Bilan énergétique

Diagnostics énergetiques
Consommation énergétique
A B C D E F G
Emission de gaz à effet de serre
A B C D E F G

Montant estimé des dépenses annuelles d'énergie de ce logement pour un usage standard est compris entre 260 € et 410 € . 2021 étant l'année de référence des prix de l'énergie utilisés pour établir cette estimation.

A propos de ce bien Caractéristiques de ce bien
  • Surface 52,30 m²
  • carrez 49,41 m²
  • séjour 22,96 m²
  • 1 chambre(s)
  • 1 salle(s) de bain
  • construit en 2022
  • cuisine américaine (équipée)
  • Chauffage collectif : autre (autre)
  • exposition Nord-Est
  • 1 niveau(x)
  • 2ème étage
  • 5 étage(s)
  • ascenseur
  • vue sur Jardin
  • balcon
  • visiophone
  • accès handicapé

Composition

Composition de ce bien

Etage 2

  • entrée 3.35 m²
  • Placard 0.51 m²
  • 0.07 m²
  • salon/sejour 22.96 m²
  • chambre 14.24 m²
  • salle de bain 6.02 m²
  • WC 2.26 m²
  • balcon 5.79 m²

Info copro

Copropriété
  • Copropriété Oui
  • Lot n° 61
  • Quote part annuelle des charges 1 560 €
  • Plan de sauvegarde Non
  • Statut du syndic Pas de procédure en cours

Financier

Informations financières
Les honoraires d'agence seront intégralement à la charge du vendeur  
Charges 130 €

Simulation

Calcul des mensualités
* Champs obligatoires
Arc En Ciel Immo Agence