Page suivante
Page précédente
Aubervilliers (93300)

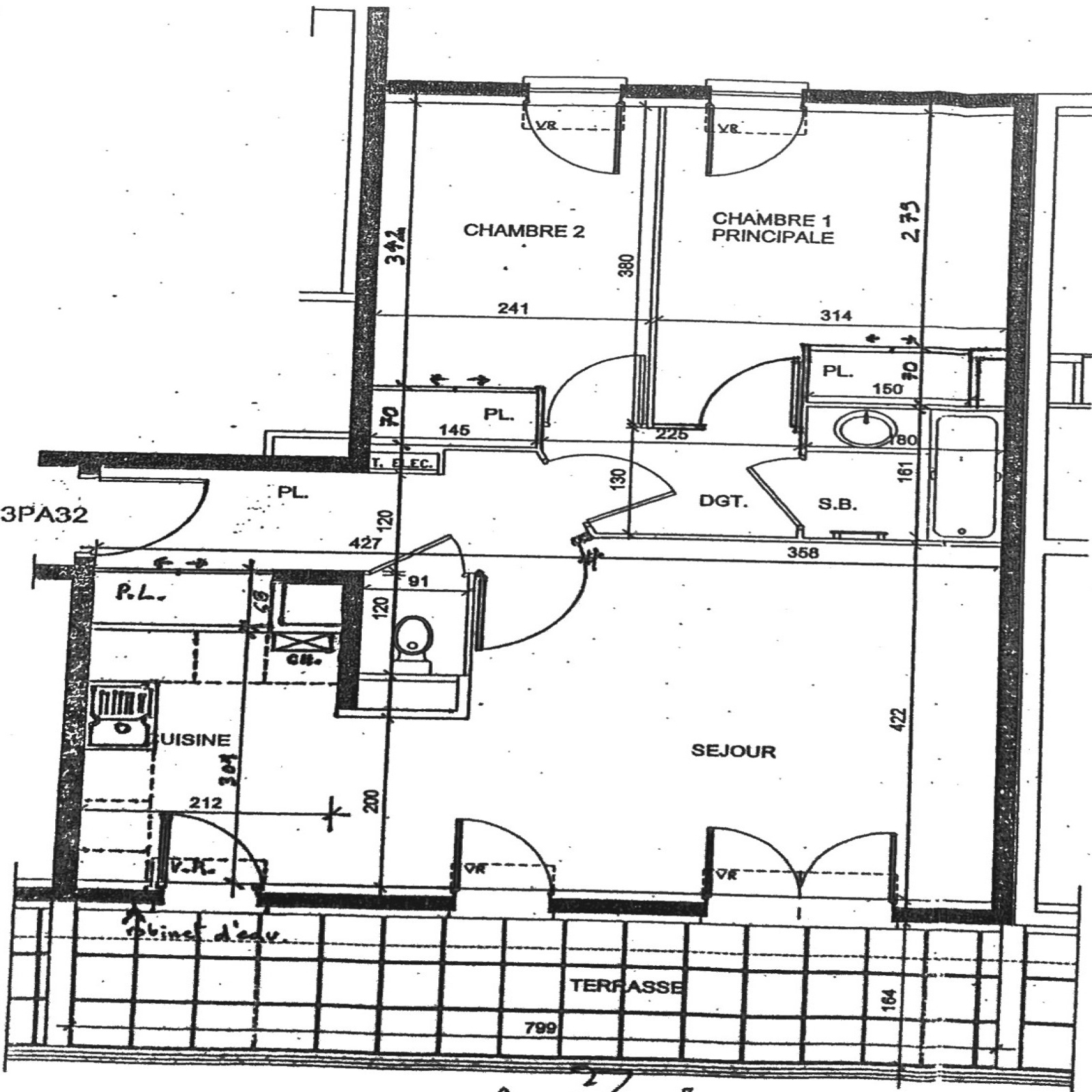
Appartement 3 pièce(s) 2 chambre(s) 61.38 m²

1
Ascenseur
1
Réf 1910

Très beau 3 pièces de 61.36m² Carrez + TERRASSE de 13,10m² plein SUD et vue dégagée au 3ème et dernier étage avec ascenseur d'un immeuble de standing de 2004 "Villa Aragon" rue des Ecoles. Traversant et Rationnel : entrée avec placard, beau séjour de 22m² donnant sur la terrasse, Cuisine séparée mais ouverte sur séjour, 2 chambres au nord avec placards, salle de bains et wc séparé avec lave-mains. 1 cave complète ce bien. Option possible d'un BOX pour 15.000 €. En très bon état. Double vitrage, volets roulants...

Copropriété : 127 lots dont 53 lots principaux. Quote-part budget prévisionnel annuel : 2146€ ; DPE NOUVEAU C(146kWh/m²an d'énergie primaire et 132kWh/m²an d'énergie finale) ; GES C - 28 (xkgCO2/m2an) ; 710€ - 1010€ estim. prix moyens des énergies indexés au 01/01/2021, abonnements ;“Les informations sur les risques auxquels ce bien est exposé sont disponibles sur le site Géorisques : www.georisques.gouv.fr”.

Prix affiché honoraires inclus à 3,79% TTC.


Les informations sur les risques auxquels ce bien est exposé sont disponibles sur le site Géorisques

Bilan énergétique

Diagnostics énergetiques
Consommation énergétique
A B C D E F G
Emission de gaz à effet de serre
A B C D E F G

Montant estimé des dépenses annuelles d'énergie de ce logement pour un usage standard est compris entre 710 € et 1 010 € . 2021 étant l'année de référence des prix de l'énergie utilisés pour établir cette estimation.

A propos de ce bien Caractéristiques de ce bien
  • Surface 61,38 m²
  • carrez 61,36 m²
  • séjour 21 m²
  • 2 chambre(s)
  • 1 salle(s) de bain
  • construit en 2004
  • cuisine séparée (semi-équipée)
  • Chauffage individuel : chaudière (gaz)
  • 1 garage(s)
  • exposition Nord-Sud
  • 1 niveau(x)
  • 3ème étage
  • 3 étage(s)
  • ascenseur
  • vue Très dégagée SUD
  • cave
  • terrasse
  • interphone
  • accès handicapé

Composition

Composition de ce bien

Etage 3

  • salon/sejour 21.59 m²
  • cuisine 6.39 m²
  • chambre 10.06 m²
  • chambre 8.58 m²
  • entrée 4.98 m²
  • chambre 2.9 m²
  • annexe 2.68 m²
  • terrasse 13.10 m²
  • WC 1.10 m²

Info copro

Copropriété
  • Copropriété Oui
  • Quote part annuelle des charges 2 146 €
  • Plan de sauvegarde Non
  • Statut du syndic Pas de procédure en cours

Financier

Informations financières
Prix net vendeur 317 000 €
Charges 178 €
Taxe foncière annuelle 1 445 €

Simulation

Calcul des mensualités
* Champs obligatoires
Arc En Ciel Immo Agence