Page suivante
Page précédente
Montreuil (93100)

Appartement 2 pièce(s) 1 chambre(s) 54 m²

1
Balcon
Ascenseur
364 000 €
Réf 2138

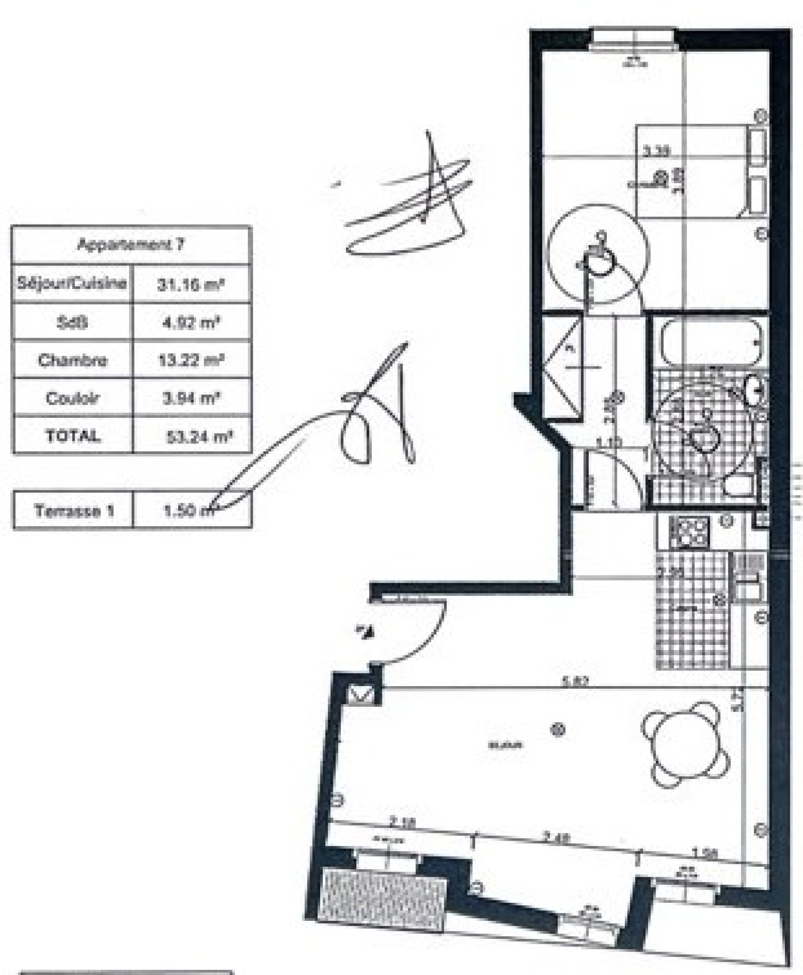
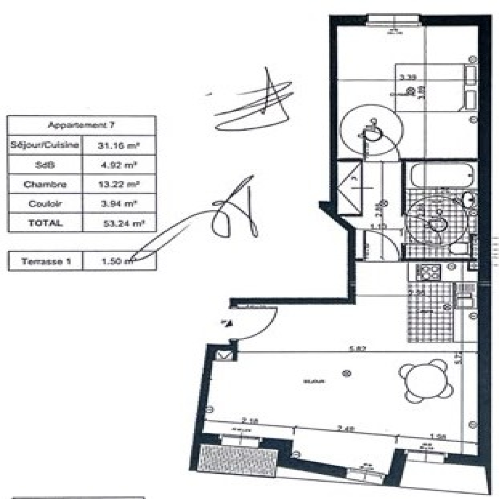
A proximité du métro Croix de Chavaux et commerces, dans bonne copropriété très bon standing de 2014, au 3ème étage avec ascenseur, grand 2 pièces de 54m² au sol dont 52.62m² Carrez + 1,50m² de loggia, comprenant : Entrée avec porte blindée, séjour de 31.15m² avec belle cuisine équipée en pan de mur, balcon-loggia au SUD sans vis à vis direct, grande chambre de 13.22m² avec placard sur cour arborée au calme, salle d'eau de 4,8m² avec douche Italienne, wc, placard. Double exposition. Chauffage individuel. Excellent DPE "C", bonne isolation thermique et phonique. Petite copropriété bien gérée, sans problème et très faibles charges de copropriété. Accès PMR (respecte normes handicapé). Option place de parking couverte au rez-de-chaussée avec borne électrique.

Copropriété : 22 lots dont 13 lots principaux. Quote-part budget prévisionnel annuel : 1394 euros. Nouveau DPE Classe d'énergie C (102KWh/m²an d'énergie primaire et 92 en énergie finale) / GES C (19kgCO²/m²an) / 590-840 € estimation des prix moyens des énergies indexés au 2021, 2022 et 2023, abonnement inclus. "Les informations sur les risques auxquels ce bien est exposé sont disponibles sur le site Géorisques : www.georisques.gouv.fr". Prix affiché honoraires inclus à 3.84%TTC.


Les informations sur les risques auxquels ce bien est exposé sont disponibles sur le site Géorisques

Bilan énergétique

Diagnostics énergetiques
Consommation énergétique
A B C D E F G
Emission de gaz à effet de serre
A B C D E F G

Montant estimé des dépenses annuelles d'énergie de ce logement pour un usage standard est compris entre 590 € et 840 € . 2023 étant l'année de référence des prix de l'énergie utilisés pour établir cette estimation.

A propos de ce bien Caractéristiques de ce bien
  • Surface 54 m²
  • carrez 52,62 m²
  • séjour 31 m²
  • 1 chambre(s)
  • 1 salle(s) d'eau
  • construit en 2014
  • cuisine américaine (équipée)
  • Chauffage individuel : chaudière (gaz)
  • exposition Nord-Sud
  • 1 niveau(x)
  • 3ème étage
  • 5 étage(s)
  • ascenseur
  • vue rue et cour-paysagée
  • balcon
  • visiophone
  • quartier Croix de Chavaux
  • accès handicapé

Composition

Composition de ce bien

Etage 3

  • salon/sejour 30.85 m²
  • chambre 13.12 m²
  • salle de bain 4.8 m²
  • accueil 3.85 m²
  • balcon 1.5 m²

Info copro

Copropriété
  • Copropriété Oui
  • Lot n° 13
  • Nombre de lots 22
  • Quote part annuelle des charges 1 394 €
  • Plan de sauvegarde Non
  • Statut du syndic Pas de procédure en cours

Financier

Informations financières
Prix de vente honoraires TTC inclus 364 000 €
Prix net vendeur 350 000 €
Prix de vente honoraires TTC exclus 350 000 €
Honoraires TTC à la charge acquéreur 4 %
Charges 116 €
Taxe foncière annuelle 1 630 €

Simulation

Calcul des mensualités
* Champs obligatoires
Arc En Ciel Immo Agence